OTO 音灯 -
OTO 音灯 - リビング
OTO 音灯 - 寝室
OTO 音灯 -

【海辺の一棟貸切・小型犬OK】
プライベートサウナで整う休日

海とサウナで心身を“ととのえる”
特別な休日を

OTO 音灯外観

長崎市為石町に誕生した一棟貸切のプライベートハウス"OTO 音灯"
喧騒から離れ、海と緑に抱かれた穏やかな環境で非日常を味わえる場所です。

熱気あふれる本格サウナで身体を温め、潮風を感じながら水風呂やガーデンでの外気浴でリフレッシュ。
夜には満天の星を眺め、心が解き放たれるような安らぎを体験できます。
ご家族やご友人と“整いの時間”をご堪能ください。

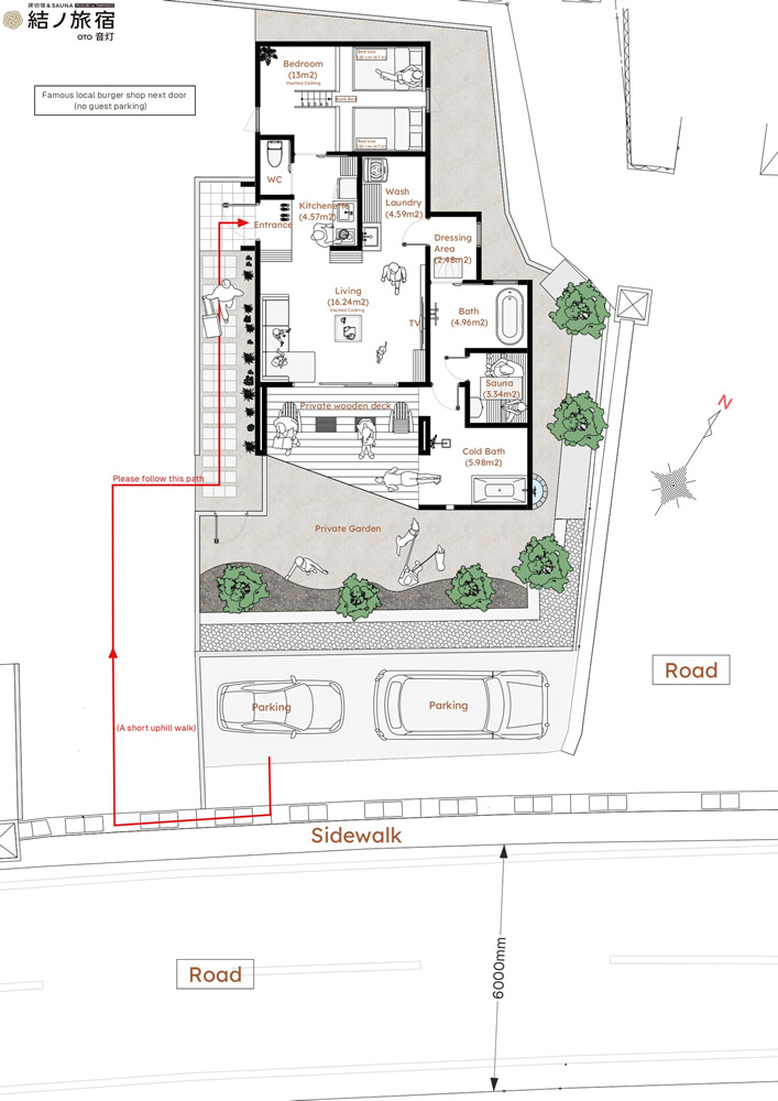
施設内平面図を表示

expand_more
OTO 音灯 施設内平面図

お部屋の配置や設備の位置を事前にご確認ください。

施設配置図を表示

expand_more
OTO 音灯 施設配置図

施設の外観配置や駐車場の位置、周辺環境をご確認いただけます。お車でお越しの際の参考にしてください。

Access

長崎県長崎市為石町2020

長崎北側の観光拠点としてアクセス良好

長崎中心部エリア 車で約30分
ハウステンボス・佐世保エリア 車で約90分
波佐見エリア(陶器・カフェ巡り) 車で約70分
島原・雲仙エリア(温泉・自然観光) 車で約90分

大浦天主堂、グラバー園、出島、平和公園、稲佐山展望台など長崎市内の名所へも車で約35分。魅力にあふれる長崎北側エリア(西海・外海・佐世保等)へのアクセスも良好です。
一棟貸切だからこそ、自由に行動できる旅の拠点としてご活用いただけます。

ペットとのご滞在

ペットとの滞在風景

小型犬(10kg以下・2頭まで)のご宿泊も可能です。潮風を感じながら海辺を散歩したり、ガーデンでくつろいだり。
静かな波音に包まれるひとときを、愛犬とともにお過ごしください。

周辺施設

セブンイレブン長崎栄上店 open_in_new 車4分 place
スーパー(エレナ三和店) open_in_new 車7分 place
バーガーショップ(ダッグラック) open_in_new 敷地内 place
川原海水浴場 open_in_new 車5分 place

スタッフおすすめの魅力あるスポットをご紹介しています。
旅のアクティビティの参考にご活用ください。

周辺施設を見る

施設詳細

宿泊情報

チェックイン・チェックアウト

  • チェックイン時刻:15:00~21:00
  • チェックアウト時刻:10:00前
  • 無人チェックイン・チェックアウト
アーリーチェックインおよび荷物預かりは対応しておりません。
レイトチェックアウトおよび荷物保管も不可です。
保護者の同伴がない未成年者のみでのご宿泊はお断りしております。

条件

  • ゲスト定員6人
  • ペットOK(小型犬・10kg以下・3頭まで)
施設内禁煙厳守
※ただし「デッキエリア」のみ喫煙可能
※必ず携帯灰皿をご持参の上ご使用ください。

美容と快適性を重視した「ReFa」シリーズを導入

ReFaウルトラファインバブル生成器『SUIGEN』

水道水をまるごとファインバブル化するシステム。バスルームのシャワーや浴槽だけでなく、洗面・キッチン・ランドリーに至るまで、館内すべての水を上質なファインバブルに変えます。毛穴汚れをやさしく洗い流し、肌や髪にうるおいを与えるだけでなく、調理や洗濯、日常の暮らしの中でも贅沢な水体験を楽しめます。

ReFaファインバブル シャワーヘッド

極小の泡が頭皮や肌の奥まで届き、バスタイムをスパのようなひとときに。

寝室

寝室1 セミダブルベッド4台
寝室2(リビング) ソファベッド(ダブルサイズ)1台

設備・サービス

設備

  • テレビ(65インチ)
  • 冷蔵庫
  • エアコン
  • ポット
  • 電子レンジ
  • 電気ポット
  • 調理器具(鍋・フライパン)
  • 食器&カトラリー
  • 全自動洗濯機
  • 加湿器

サウナ

  • サウナ(ストーブ ハルビア)
  • ロウリュ可
  • 水風呂
  • 外気浴スペース

アメニティ

  • タオル
  • 歯ブラシ
  • シャンプー
  • ボディソープ
  • ドライヤー等

無料サービス

  • Wi-Fi
  • 敷地内無料車スペース(多数駐車OK)

有料オプション

  • ペット用品オムツ(S,Mサイズ)
  • ※詳細はハウスルール記載

もうひとつの特別な宿

ながさきMONICA

緑に囲まれた高台に建つアメリカンな風情のフラットハウス。長崎北部方面へのドライブの宿泊拠点として最適で、ドライバー、リモートワーカー、ペット連れファミリーにおすすめです。静かな住宅街で、ご家族やご友人と心温まる時間をお過ごしください。

ながさきBENTEN

港風と街の灯りが溶け合う長崎の静かな街並みに佇む、1日1組限定の宿。プライベートサウナで心と身体を整え、長崎スタジアムシティ近く・小型犬同伴可。