ABCDEFGHIJKLMNOPQRSTUVWXYZabcdefghijklmnopqrstuvwxyz1234567890!?税込….()()概要
ABCDEFGHIJKLMNOPQRSTUVWXYZabcdefghijklmnopqrstuvwxyz1234567890!?税込….()()概要

SALE

建売住宅 販売中
時津町浜田郷 2棟 建売住宅

時津町浜田郷 2棟 建売住宅(2026年4月完成予定)

海と山に囲まれた時津町は、自然を感じながら穏やかに暮らせるまち。
国道沿いにはお店も多く、毎日の生活に便利です。

中でも人気のエリアが「浜田郷」
平坦で歩きやすく、通勤・通学にもスムーズ。
スーパーや公園も近くにあり、暮らしやすさがそろっています。

そんな浜田郷に、新しく2棟の建売住宅が誕生します。
自然と便利さのどちらも楽しめるこの場所で、家族の新しい暮らしがはじまります。

街を歩く ー浜田郷まち散歩ー

物件周辺を歩いてみた

街並み1
街並み2
街並み3
街並み4
街並み5

国道から少し入るだけで、景色も空気を変わる。そんな道を歩いてきました。
橋を渡って川沿いを進むと、今回の物件があります。
道路は広くて平坦なので歩きやすい。自転車やベビーカーでも安心して通れそう。
近くには小さな広場や公園があって、春には桜が咲く。
季節の変化を感じながら、のんびり暮らせそうな場所です。

日常の生活動線を見てみる

バス停1
バス停2
小学校
中学校

始発のバス停までは少し歩くだけ。座ってゆっくり通勤したい朝にはちょうどいい。
最寄りのバス停は徒歩5分ほど。通学路は平坦で、小学校も中学校も行きやすい距離。
毎日の移動がスムーズだと、それだけで暮らしが少し軽くなる気がします。

イオン
ドラッグストアモリ
ジョイフル
MrMax

イオン時津までは約900m。ドラッグストアモリ時津店までは約500m。
日用品からちょっとした外食までここで完結。急な買い出しにも対応できますね。
車で少し走ればスーパーやディスカウントストア、役場・銀行などもそろっています。

自然を満喫してみた

自然を満喫してみた 1
自然を満喫してみた 2
自然を満喫してみた 3
自然を満喫してみた 4
自然を満喫してみた 5

時津ウォーターフロント公園を出発。潮風が心地よくて、つい長居してしまう。
大村湾沿いの散歩コースでは、水面のきらめきにひと息。
車で少し行くと崎野自然公園。
草スキーやアスレチック、キャンプ場まで完備された遊び場です。最後は展望デッキからの眺め。穏やかな海と空を眺めていると時間を忘れそうになります。

自然を満喫

どこを歩いても、暮らしの風景がちゃんとある。
静かで便利、そして少し心がやわらぐ場所。
この街で始まる新しい毎日が、きっと心地いいものになりますように。

案内図

案内図

住まいの紹介

ー浜田郷2棟建売住宅ー

浜田郷2棟建売住宅

家族の暮らしを、やさしく包み込む住まいを目指しました。
A号地は、広々リビング・家事ラク動線・3台駐車スペースを確保。
B号地は、対面キッチン・スムーズ動線・家事も会話も快適です。
デザインは違っても、快適な暮らしをカタチに。
あなたの"お気に入り"を見つけてください。

分譲区画図

浜田郷2棟建売住宅 敷地配置図と間取り図
区画 土地面積 建物/延べ床面積・間取り 価格(税込)
A号地 122.53㎡
(37.06坪)
89.97㎡
(27.21坪) 3LDK
3,490万円
B号地 108.40㎡
(32.79坪)
90.25㎡
(27.29坪) 3LDK
3,490万円

A号地

家族の時間がやさしく流れる家

3,490万円(税込)

A号地 外観

HAMADA - KURUMI

玄関を開けると、広がるゆとりの空間。

シューズクロークがあり、靴や日用品をすっきり収納できます。
リビングは家族が自然と集まるあたたかな場所。
キッチンから水回りまでの動線もスムーズで、家事がちょっと楽しくなる工夫も。

たっぷり収納できるファミリークローゼットや、
3台分の駐車スペースなど、暮らしやすさがしっかり詰まっています。

日々の小さな「いいね」が積み重なって、
家族の物語が育っていく――そんな住まいです。

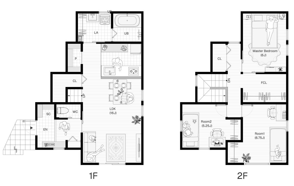
PLAN / 3LDK

A号地 配置図
A号地 間取り図

PHOTO(施工事例)

写真はイメージです

  • 価格
    3,490万円
  • 間取り
    3LDK
  • お支払い例 / 月々
    [40年返済] 90,324円
    ボーナス払い0円、十八親和銀行の場合 / 金利:変動金利融資手数料型1.125%
    返済期間:40年 / 借入金額:3,490万円 / 自己資金:0円
    がん特約も加入可能。ただし審査条件があります。
敷地面積
122.53㎡(37.06坪)
建物情報
延べ床面積:89.97㎡(27.21坪)
構造:木造2階建て
建築確認番号
第ERI-25031513号(2025年10月23日)
完成
2026年4月10日完成予定
設備
システムキッチン・IHクッキングヒーター・レンジフード・トイレ・洗面化粧台・ユニットバス・エコキュート・エアコン1台・照明器具・火災警報器・ダイニングテーブル・ソファ・テレビボード
引き渡し
要相談

B号地

家族の毎日がちょうどよく心地いい家

3,490万円(税込)

B号地 外観

HAMADA - KOTORI

手元を隠しつつ家族の顔が見える、ほどよい距離感の対面キッチン。

料理をしながら会話が弾み、穏やかな時間が流れます。
キッチンから洗面・浴室までまっすぐつながる動線で、家事をまとめてこなせる効率的な間取り。
広めのランドリーでは「洗う・干す・たたむ」が一か所で完結します。

2階にはファミリークローゼットを設け、
衣類や荷物をすっきり収納。
平坦な敷地に2台分の駐車スペースも確保し、日々の「ちょうどいい暮らし」が叶う住まいです。

PLAN / 3LDK

B号地 配置図
B号地 間取り図

PHOTO(施工事例)

写真はイメージです

  • 価格
    3,490万円
  • 間取り
    3LDK
  • お支払い例 / 月々
    [40年返済] 90,324円
    ボーナス払い0円、十八親和銀行の場合 / 金利:変動金利融資手数料型1.125%
    返済期間:40年 / 借入金額:3,490万円 / 自己資金:0円
    がん特約も加入可能。ただし審査条件があります。
敷地面積
108.40㎡(32.79坪)
建物情報
延べ床面積:90.25㎡(27.29坪)
構造:木造2階建て
建築確認番号
第ERIー25032090号(2025年10月23日)
完成日
2026年4月10日完成予定
設備
システムキッチン・IHクッキングヒーター・レンジフード・トイレ・洗面化粧台・ユニットバス・エコキュート・エアコン1台・照明器具・火災警報器・ダイニングテーブル・ソファ・テレビボード
引渡日
要相談

物件概要

所在地
長崎県西彼杵郡時津町浜田郷
総戸数
2区画
販売戸数
2区画
用途地域
第一種住居地域
建ぺい率 / 容積率
60% / 200%
法令等の制限
法22条指定区域・宅地造成工事規制区域
道路
前面道路(公道)幅6m
供給施設
公共上下水道(時津町)・電気(九州電力)
工事完了
2026年4月10日完了予定
取引態様
売主(株式会社マイハウス)

備考

  • 掲載されている金利は2025年10月時点のものであり、お申し込み時に金利が変わる場合がございます。
  • 掲載されている販売価格は2025年10月時点のものであり、予告なく変更することがあります。
  • 合成パースはイメージであり、敷地形状や外観色、外構等はこの限りではありません。

エリア情報

  • [交通]
  • 浜田バス停 / 徒歩5分
  • 溝川バス停 / 徒歩7分
  • [学童施設]
  • 時津東保育園 / 徒歩9分
  • 時津東小学校 / 徒歩10分
  • 時津中学校 / 徒歩5分
  • [環境]
  • 前閒街区公園 / 約350m
  • 時津ウォーターフロント公園 / 約1200m
  • 崎野自然公園 / 約3000m
  • [周辺施設]
  • 西彼杵郵便局 / 約280m
  • セブンイレブン時津西時津郷店 / 約300m
  • ドラッグストアモリ時津店 / 約500m
  • ジョイフルサン時津店 / 約850m
  • イオン時津 / 約900m
  • 時津町役場 / 約1300m
  • 十八親和銀行時津中央支店 / 約1400m
  • ミスターマックス時津店 / 約1600m
メールお問い合わせ

お問い合わせ

必須ご要望
見学・相談 希望日

※3日前までのご予約でお願いします
隔週火曜・毎週水曜は定休日です。
※弊社定休日でのご見学希望の方はお問い合わせください。(調整できる場合があります。)

希望日:

時間:

ご興味のある物件

必須お名前
必須ふりがな

カタカナもしくはひらがなでご入力ください

必須Eメールアドレス
必須電話番号
弊社を知ったきっかけは?

問い合わせのきっかけとなった項目を選択してください。

お問い合わせメッセージ



マイハウスアプリ
マイハウスアプリ