長崎での暮らしに、新しい発想を。
「&ROSE(アンド・ロゼ)」は、“自分時間をもっと楽しめる家” をテーマに設計された住まいです。家族との時間を大切にしながらも、一人ひとりが趣味や好きなことに没頭できる空間を持つこと。それが「&ROSE」の大きな魅力です。

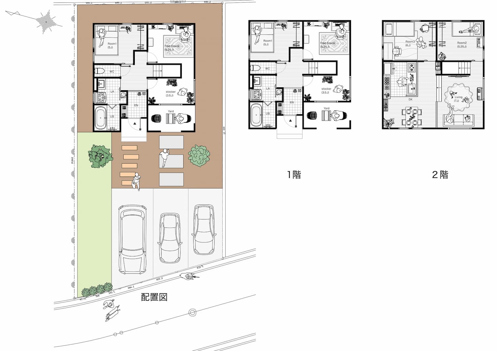
-暮らしを広げるインナーガレージ-
⚫︎収納力と使いやすさ
アウトドア用品やスポーツグッズ、日常のストック品までしっかり収まるインナーガレージ。玄関直結だから出し入れも便利。
⚫︎趣味を楽しむ秘密基地
DIYや自転車のメンテナンス、ちょっとした作業スペースにも。好きなことに没頭できる“自分の部屋”として活用できます。
⚫︎雨の日も安心のストック場所
長崎特有の雨の多い気候にも対応。外に置けない荷物や買い物帰りの一時置き場としても活躍。暮らしに余裕が生まれます。



「&ROSE」が叶える住まいのコンセプト
⚫︎スキップフロアで広がる居場所
家族がつながりながらも、それぞれの時間を過ごせる立体的な空間設計。
⚫︎インナーガレージのある暮らし
趣味や収納スペースを確保し、“自分時間”をもっと豊かに。
⚫︎シンプルで飽きのこないデザイン
日常にすっと馴染みながら、遊び心を忘れない設計。

長崎の暮らしにフィットする理由
坂道や雨の多い土地柄だからこそ、荷物の置き場所や収納の工夫は欠かせません。
「&ROSE」のインナーガレージとスキップフロアは、そんな生活の不便を解消しつつ、“暮らしを楽しむ余裕” を加えてくれます。
まとめ
「&ROSE」は、
- 趣味や自分時間を大切にしたい方
- 家族との時間と個人の時間を両立させたい方
- 雨や坂の多い長崎で、便利に快適に暮らしたい方
にぴったりの住まいです。
インナーガレージは単なる収納ではなく、“ライフスタイルを広げる場所”。
長崎市豊洋台にて『&ROSE』モデルハウス公開中。ぜひ、その心地よさを体感してみてください。
※現地にスタッフは待機していません。ご予約をお願いします。
